Leave a Message

Thank you for your message. We will be in touch with you shortly.

Welcome To

Bungalows

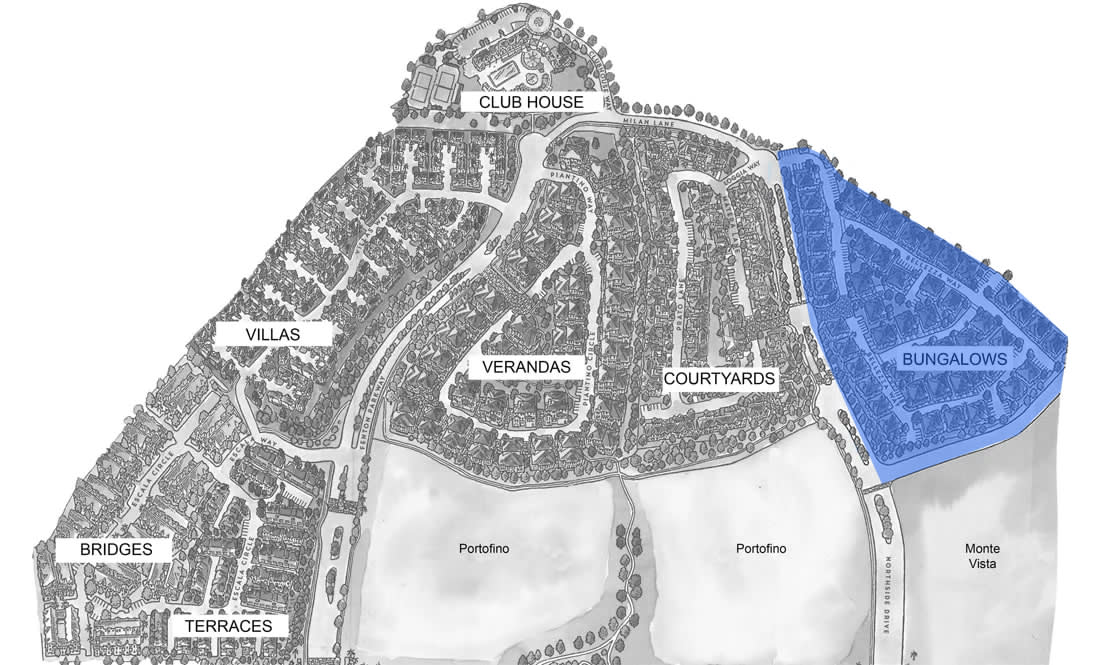
The easternmost neighborhood of Escala is known as “The Bungalows”.

Welcome to Bungalows of Escala

The easternmost neighborhood of Escala is known as “The Bungalows”. The two-story townhomes are designed in a triplex style providing a detached home feel, with two out of the three floorplans featuring private outdoor space. The detached home feel, quiet location, and beautiful outdoor space make the Bungalows a highly sought-after neighborhood in Escala.
 

Floorplans

Click on the plans below to view and download each unique floor plan.

 

What We Love

  • Great location in the community
  • The Green space
  • Ample guest parking
 

Map

 
 

Work With Us

Interested in learning more about Civita and Escala? Contact us today.
Contact Us
Follow Us